Imobilo utilizează fişiere de tip cookie pentru a personaliza și îmbunătăți experiența ta pe Website-ul nostru. Înainte de a continua navigarea pe Website-ul nostru te rugăm să aloci timpul necesar pentru a citi și înțelege conținutul Politicii de Cookie. Prin continuarea navigării pe Website-ul nostru confirmi acceptarea utilizării fişierelor de tip cookie conform Politicii de Cookie.

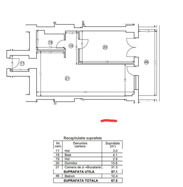
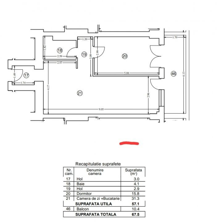
SunLake Residence, 2 camere, 67,5 mp, terasa 10 mp

Bucuresti, Colentina

115.000€ + TVA
ID: FX60557 24 Comision 0%
  • Nr. camere:2
  • Nr. dormitoare:1
  • S. utila:57.00 mp
  • S. terase:10.40 mp
  • S. construita:77.00 mp
  • Comp.:Semidecomandat
  • Confort:1
  • Etaj:Etaj 6
  • Nr. bucatarii:1
  • Nr. bai:1
  • An constructie:2025
  • Structura:Beton
  • Tip imobil:Bloc
  • Regim inaltime:D+P+11
  • Orientare:Est

Lacul Fundeni - SunLake Residence
Zona linistita cu spatii verzi, pe malul Lacului Fundeni, situata intre Colentina si Pantelimon, la doar cateva minute de Spitalul si Institutul Fundeni. Apartament modern, bine compartimentat, amplasat intr-un bloc nou, retras de la strada. Interior elegant, cu finisaje moderne, bucatarie deschisa, camere inalte, ferestre panoramice, incalzire in pardoseala si o terasa de 10 mp. Facilitati: parc privat, promenada pe malul lacului, loc de joaca pentru copii, lobby inalt, 2 lifturi Schindler. Costuri reduse datorate surselor proprii de energie verde, panouri de preparare a apei calde, panouri fotovoltaice pentru eficienta energetica.
La pretul afisat se adauga tva.
Se poate achizitiona separat loc de parcare.

Utilitati
  • Utilitati generale: Curent, Apa, Canalizare, Acces internet, Fibra optica
  • Sistem incalzire: Centrala imobil, Incalzire pardoseala
Finisaje
  • Izolatii: Izolatie Exterior, Bloc izolat termic
  • Pereti: Vopsea lavabila, Faianta
  • Podele: Parchet, Gresie
  • Ferestre: Ferestre PVC, Ferestre Termopan
  • Usa intrare: Usa intrare Metal
  • Usa interior: Usa interior Celulare, Usa interior Lemn
Dotari
  • Bucatarie: Bucatarie Nemobilata, Bucatarie Neutilata
  • Contorizare: Apometre
  • Mobilat: Nemobilat
  • Imobil: Videointerfon, Lift, Curte comuna

Dragos Enachioaie

Broker/Owner

Contacteaza-ma

Dragos Enachioaie

0771208924