






















Totul a inceput de la o idee: “ acasa in centrul Bucurestiului”. Ne-am gandit la cineva dependent total de Centrul Bucurestiului, o persoana citadina.
Amplasat la cativa pasi de Calea Mosilor-Bd.Dacia-str. Mihai Eminescu, imobilul este o noua provocare pentru echipa noastra.
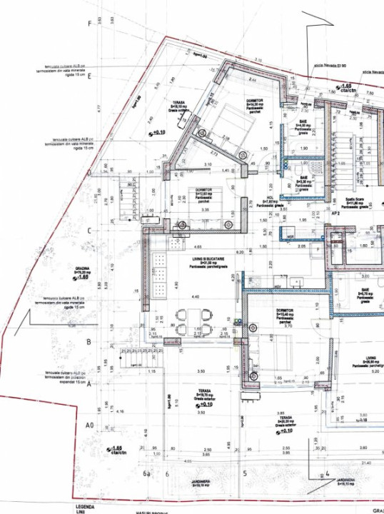
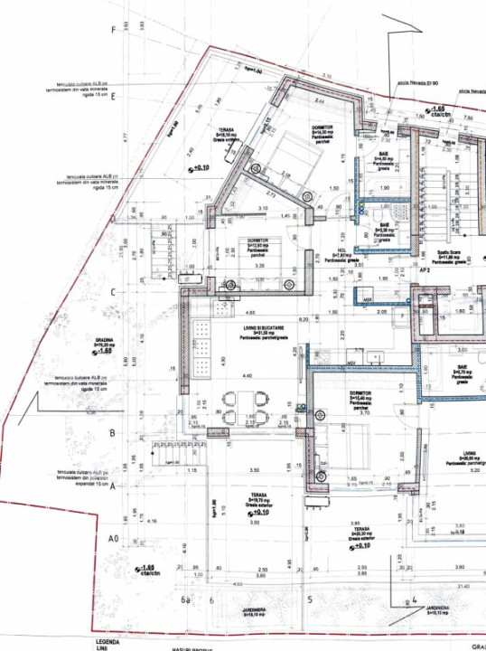
Construim la fel, un imobil cu doar 22 de apartamente, regim de inaltime P+7, cu facilitati moderne, finisaje Premium si spatii compartimentate inteligent. Gandul nostru este sa creem o familie formata din cativa vecini care sa devina prieteni.
Locurile de parcare sunt la subsol, costul acestora nefiind inclus in pretul afisat, dar avem disponibil cate un loc pentru fiecare apartament.
Cine este interesat de achizitia unui apartament poate beneficia de serviciile unor brokeri de credit parteneri.
Preturile afisate nu includ TVA, aceasta se achita in plus conform legii aplicabile fiecarui cumparator.
Speram ca ti-am starnit interesul, ramane doar sa ne suni!
Suntem siguri ca vei gasi aici, acel loc pe care il cauti. Hai in vizita la noi!
Descrierea constructiva si materiale folosite:
Imobilul este construit dintr-o structura cu radier general, stalpi/grinzi/plansee din beton armat; inchiderile perimetrale si compartimentarile dintre apartamente din caramida Wienerberger de 36cm plus tencuiala/glet/fatada, iar compartimentarile interioare tot din caramida Wienerberger de 15cm plus tencuiala/glet/finisaj alb lavabil/ceramica;
- tencuieli si glet mecanizate;
- fatada ventilata: vata bazaltica 15cm, alucobond plus fibrociment;
- incalzire de pardoseala -Tecce Germania, ex: conductori TECEfloor SLQ-grad inalt de fiabilitate;
- centrala termica in condensatie, proprie pentru fiecare apartament;
- tamplarie PVC cu sticla termoizolanta tripan Salamander-Blue Edition
- balcoanele si terasele inchise cu parapet din sticla securizata;
- Lift Kone 4 persoane;
- ceramica perete/pardoseala in bai si parti comune, fabricatie Italia;
- usi interior MDF pantografate, cu toc plan si pervaz drept, cu broasca magnetica-Pinum fabricatie Italia;
- usa intrare apartament metalica-blindata cu inchideri multipunct si balamale ascunse- Pinum fabricatie Italia;
- parchet special pentru incalzirea din pardoseala: lemn stratificat-stejar natur
- obiectele sanitare gama moderna-Rocca, accesorii HansGrohe
- accesorii electrice BTicino prize/ intrerupatoare, gama Premium;
- acces securizat in cladire, videointerfon si supaveghere video perimetrala si spatii comune;
- echipare cu instalatie de internet/voce/date/TV cu fibra optica pentru fiecare apartament;
- instalatii de climatizare incastrate prin pereti, individual pentru fiecare apartament/camera; echipamentele terminale fiind optionale;
- toate utilitatile contorizate individual, contorii montati in exteriorul apartamentelor;
Iluminatul pe spatii comune cu lumini LED si lampi cu senzori de miscare, astfel incat costurile comune sa fie cat mai mici.
Designul spatiilor comune realizat de un studio specializat.
Acestea sunt cateva dintre elementele speciale, dar va lasam placerea sa descoperiti surprizele placute, atunci cand ne veti vizita !
Suna azi, cine stie? Maine va fi tarziu!