






















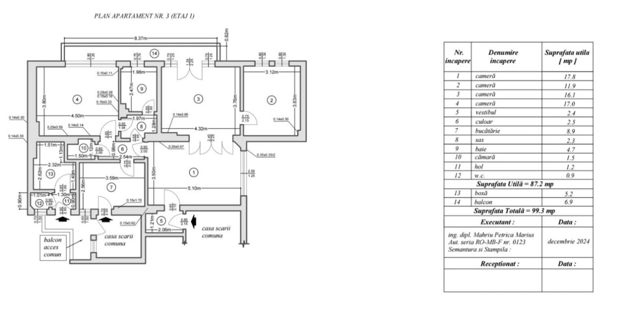
Descoperiți un colț de liniște și confort în inima Bucureștiului, cu acest apartament semidecomandat de 100 mp, situat în zona Călărașilor-Decebal.
La distanțe aproximativ egale față de Piața Alba Iulia și stația de metrou Piața Muncii, această proprietate din 1943 poate îmbina farmecul clasic cu facilitățile moderne, fiind ideală pentru familii sau tineri profesioniști care caută un cămin primitor și accesibil. Prețul de 163.000€ face din această ofertă o oportunitate unică pe piața imobiliară.
Apartamentul configurat ca „atunci”, dispune de două dormitoare spațioase, o baie mare cu cadă și o toaleta de serviciu, oferind confort și intimitate pentru întreaga familie.
Balcoanul de la strada este atat de mare încât îți poți face „norma de pași” la etaj.
Bucătăria spațioasă este locul ideal pentru a pregăti mese delicioase, iar spațiul de living promite momente plăcute alături de cei dragi.
Cu o suprafață totală de 100 mp, acest apartament vă oferă tot spațiul de care aveți nevoie pentru a vă simți acasă.
Nu lăsați această oportunitate să treacă!
Fie că sunteți în căutarea unui cămin confortabil sau a unei investiții inteligente, acest apartament din zona Călărașilor-Decebal vă așteaptă să-l transformați în propriul refugiu.
Contactați-ne astăzi pentru a programa o vizionare și descoperiți personal toate avantajele pe care această proprietate le oferă!