








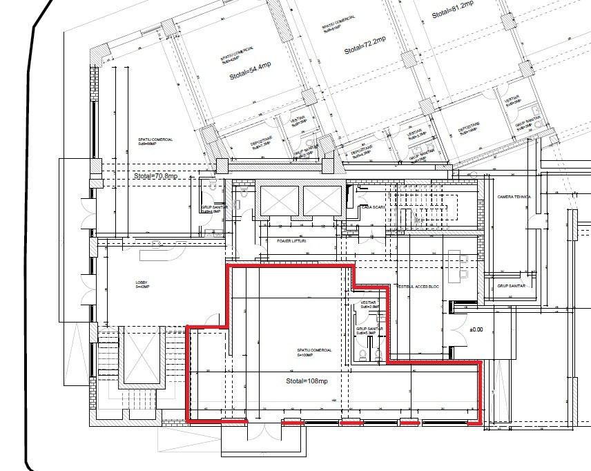
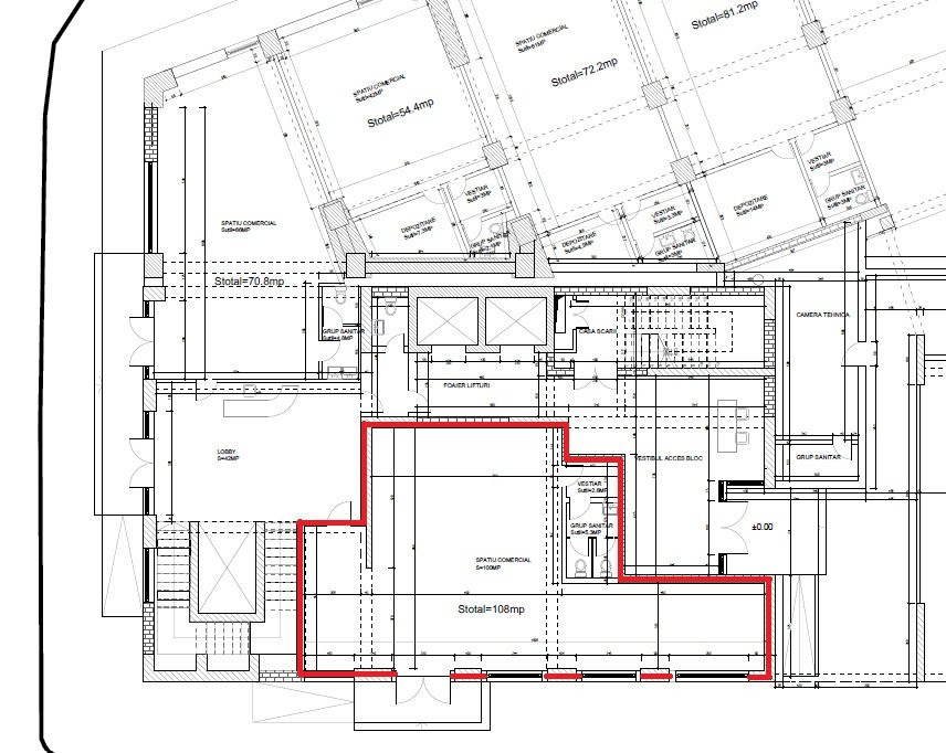
Spatiile comerciale se afla in proiectul premium Barrio Residence Unirii din strada Voinicului, nr. 1-11, la doar 150 m de Bd. Unirii.
Dispun de spatii vitrate mari, finisaje premium si un vad comercial si pietonal bun.
Disponibilitati:
Parter: intre 72 mp si 312 mp (dispun de terasa proprie), preturi intre 35-40 euro/mp + TVA in functie de pozitie.
Mezanin: open space de 887 mp cu posibilitate de compartimentare, pret: 25 euro/mp + TVA.
Subsol: intre 182 mp si 463 mp. (dispun de putere mare, pretabile si pentru RMN), pret: 22 euro/mp + TVA.
Posibilitate de montare hota. Parcarile sunt disponibile separat la un cost de 100 euro + TVA.
Imobilul are termen de finalizare in aprilie 2026.
Pentru orice detalii ma puteti contacta!