






















OPORTUNITATE DE INVESTIȚIE – CEL MAI BUN PREȚ PENTRU TEREN 1.269 MP ÎN CENTRUL LOCALITĂȚII ȘTEFĂNEȘTII DE JOS, CU TOATE UTILITĂȚILE!
Dacă ești în căutarea unei oferte excelente, rar întâlnită pe piață, ai găsit exact ceea ce îți trebuie: un teren cu potențial ridicat, situat în cea mai bună zonă din Ștefăneștii de Jos.
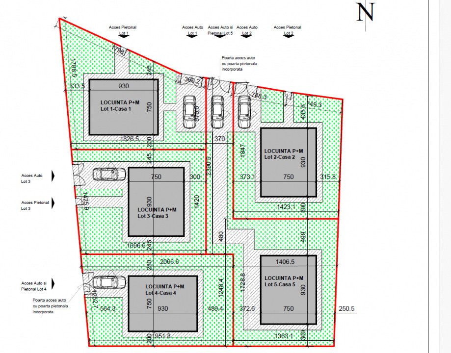
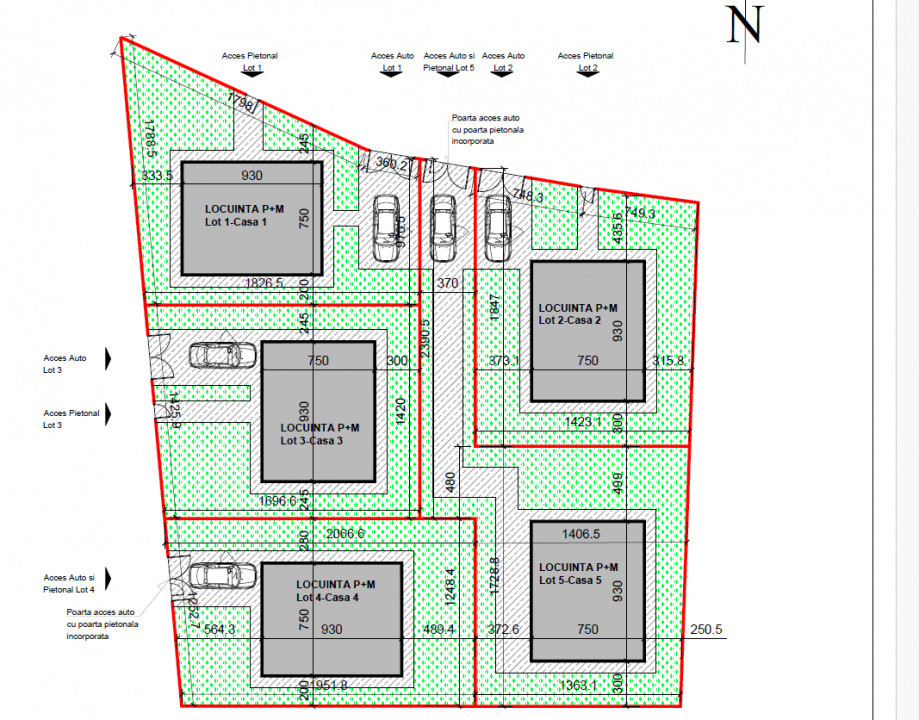
Proprietatea are o suprafață totală de 1.269 mp, poziționată chiar în centrul localității, la câțiva pași de primărie, cu dublă deschidere la străzile Teiului și Comarnic. Toate utilitățile sunt disponibile chiar lângă teren: apă, canalizare, gaze și energie electrică.
Avantaje cheie:
Dublă deschidere — flexibilitate maximă în dezvoltare
Zona centrală, cu acces rapid către București și autostradă
Toate utilitățile la limita proprietății
Preț excelent raportat la locație și potențial
Pe acest teren a fost conceput un proiect de lotizare și există autorizație de construire pentru 5 case individuale, precum și deviz de materiale pentru întreg proiectul — ideal pentru dezvoltatori sau investitori interesați de un mini-ansamblu rezidențial. Alternativ, terenul este perfect și pentru construcția unei locuințe individuale cu un teren generos.
Comuna Ștefăneștii de Jos se află într-o continuă dezvoltare, iar prețurile terenurilor sunt în creștere, fiind o investiție sigură și profitabilă atât pe termen scurt, cât și pe termen lung.
Nu ezita să mă contactezi pentru detalii suplimentare și programarea unei vizionări!
